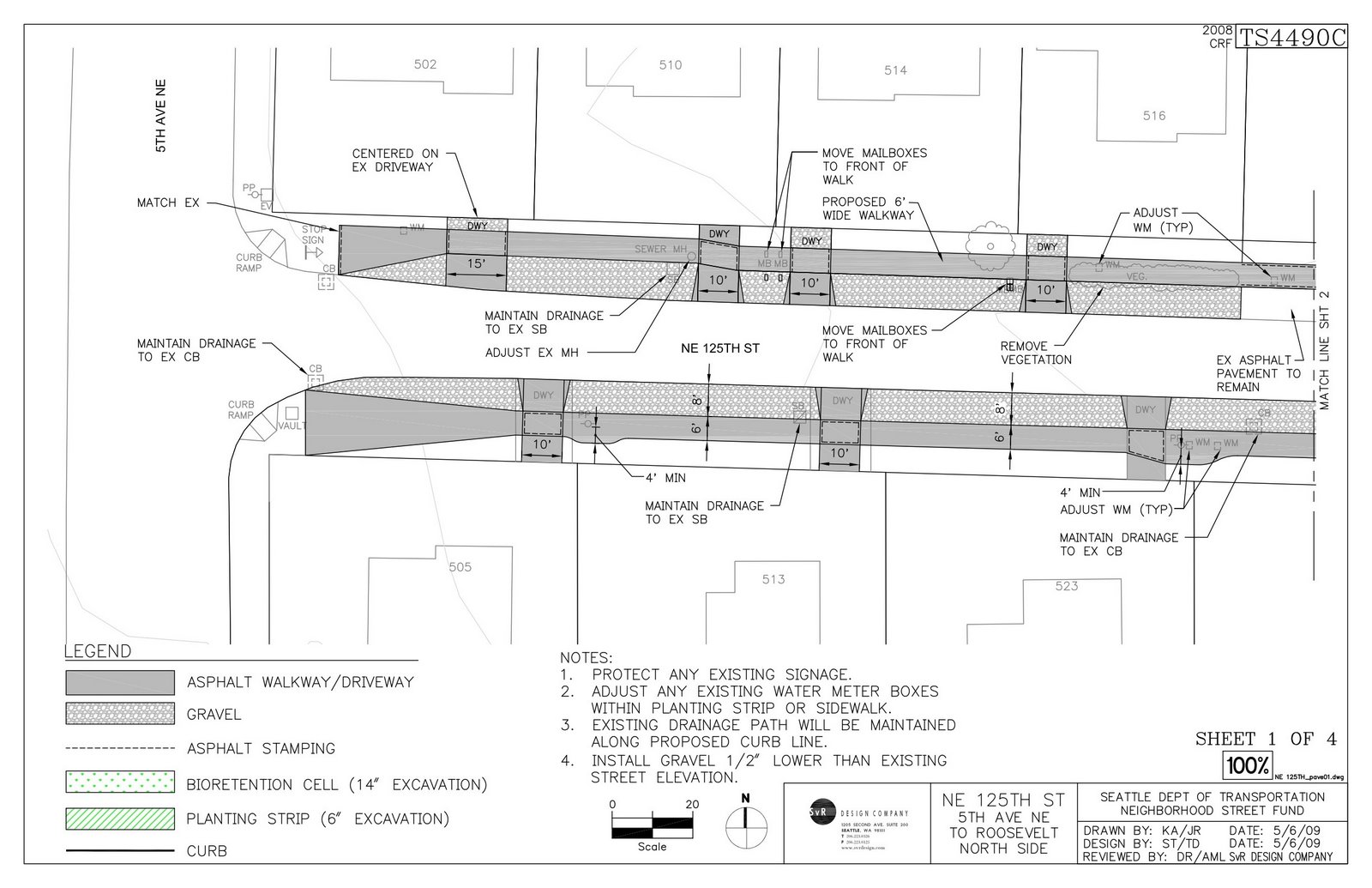
Shauna Walgren from SDOT called yesterday and said that they are approving the plans for adding a sidewalk to the south side of the street between 5th Ave. NE and 8th Ave. NE. Attached are the sidewalk plans (please note that these plans keep evolving as several neighbors have contacted Shauna to request changes – landscaping instead of parking for example – since the plans were made).
This week, they hope to finish the north side between 5th Ave. NE and 8th Ave. NE, then next week they will move on to the other segments (either the south side mentioned above, or the north side between 8th Ave. NE and Roosevelt Way NE).
Also, FYI – the sidewalks will ultimately be colored grey so they will look like concrete, but I believe they will remain black until this summer. They have to wait for warm weather before they can color the sidewalks.
(click on the images below to enlarge)






Leave a Reply